借りたい
賃貸物件を探す
買いたい
住宅や土地を探す
お知らせ
すーまるnetからのお知らせ
トピックス
取扱店からのお知らせ
不動産業者様へ
掲載やサイトについて
北見の不動産・お部屋探し決定版!
「
借りたい
」「
買いたい
」 なんでもミツカル!
北見の賃貸・不動産の売買情報「すーまるnet」
kitami.suumaru-net.com
北見の不動産・お部屋探し決定版!
「
借りたい
」「
買いたい
」 なんでもミツカル!
借りたい
賃貸物件を探す
買いたい
住宅や土地を探す
お知らせ
すーまるnetからのお知らせ
トピックス
取扱店からのお知らせ
不動産業者様へ
掲載やサイトについて
参加取扱店|一覧をみる
|借りたい|
|エリアから探す|
|地図から探す|
|学校から探す|
|新着物件一覧|
|買いたい|
|マンション|
|一戸建|
|土地・収益物件|
|新着物件一覧|
◉
マイリストをみる
◉
すーまるnetについて
◉
物件の掲載について
◉
すーまるnetへのお問合せ
◉
ご利用規約
|買いたい|
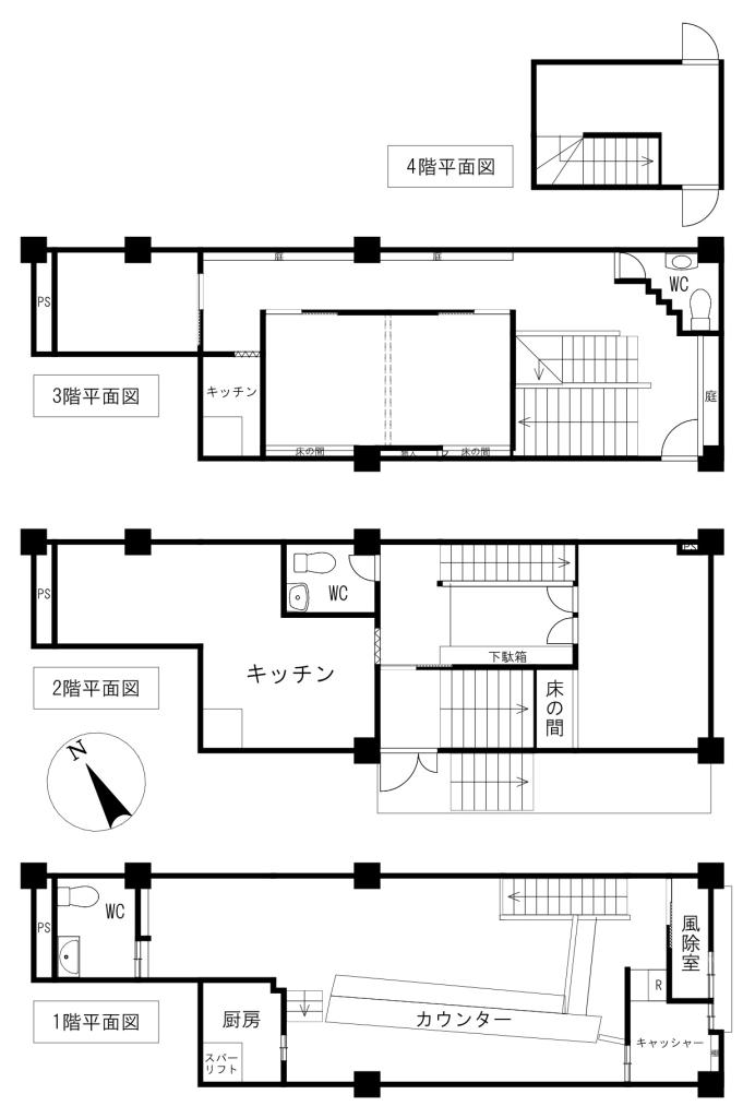
物件詳細
マイリストに追加
店舗 北四条西3丁目
2,000
万
円
所在地
北見市北四条西3丁目2番1
築年
1965年11月
種別/階建
店舗(一棟)/地上4階建
面積
専有/0.00㎡ バルコニー/0.00㎡ 建物/160.87㎡ 土地/183.07㎡
交通
JR石北本線 北見駅 徒歩8分
取扱・お問合せ
北見不動産売却・買取センター
0900032 北見市三住町17番地2
Tel.0157-57-5710
店舗詳細
メールでこの物件に問合せ
間取り
-
構造
鉄筋コンクリート造
学校区
中央小学校/北中学校
駐車場
無し/0円/月額(駐車可能台数0台)
用途/地目
商業地域/宅地
引渡
相談
仲介手数料
726,000円
現況
その他
建ぺい/容積
建ぺい率80% 容積600%
接道状況
北東幅18.00mの公道に7.80m接道
取引態様
一般
コメント
*~*<おすすめPOINT>*~*
●現在の営業は2026年1月下旬までの予定★厨房器具・製氷機・食器類などはそのまま引き渡し可能です(*^-^*)
●初期費用を抑えてすぐに営業を開始したい方にオススメ!
●視認性・集客力ともに期待できる立地♪
●4階は屋上となっており、多目的な活用が可能です(^^)
*~*<周辺環境>*~*
●中央小学校まで徒歩10分、北中学校まで徒歩27分
●セブン-イレブン 北見北4条店まで徒歩3分
〈その他〉
●公簿売買・現状渡し・契約不適合免責
●前面道路都市ガス管あり
●価格変更【2200万円→2000万円】2026.1.19~
備考
-
設備等
-
メールでこの物件に問合せ
「すーまるnet」は参加店を随時募集中です!
すーまるnetについて
物件の掲載について
すーまるnetへのお問合せ
借りたい
| エリアから
| 地図から
| 学校から
| 新着物件一覧
買いたい
| マンション
| 一戸建
| 土地・収益物件
| 新着物件一覧
web特集
トピックス
不動産業者様へ
参加取扱店一覧
すーまるnetについて
物件の掲載について
すーまるnetへのお問合せ
ご利用規約
© Tokachi Mainichi Newspaper Inc.