借りたい
賃貸物件を探す
買いたい
住宅や土地を探す
お知らせ
すーまるnetからのお知らせ
トピックス
取扱店からのお知らせ
不動産業者様へ
掲載やサイトについて
北見の不動産・お部屋探し決定版!
「
借りたい
」「
買いたい
」 なんでもミツカル!
北見の賃貸・不動産の売買情報「すーまるnet」
kitami.suumaru-net.com
北見の不動産・お部屋探し決定版!
「
借りたい
」「
買いたい
」 なんでもミツカル!
借りたい
賃貸物件を探す
買いたい
住宅や土地を探す
お知らせ
すーまるnetからのお知らせ
トピックス
取扱店からのお知らせ
不動産業者様へ
掲載やサイトについて
参加取扱店|一覧をみる
|借りたい|
|エリアから探す|
|地図から探す|
|学校から探す|
|新着物件一覧|
|買いたい|
|マンション|
|一戸建|
|土地・収益物件|
|新着物件一覧|
◉
マイリストをみる
◉
すーまるnetについて
◉
物件の掲載について
◉
すーまるnetへのお問合せ
◉
ご利用規約
|買いたい|
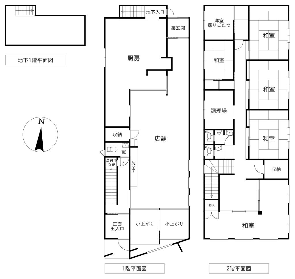
物件詳細
マイリストに追加
店舗 本町5丁目2番6外4筆
2,900
万
円
所在地
北見市本町5丁目2番6外4筆
築年
1995年11月
種別/階建
店舗(一棟)/地上2階建
面積
専有/0.00㎡ バルコニー/0.00㎡ 建物/299.09㎡ 土地/819.39㎡
交通
JR石北本線 北見駅 徒歩23分
北海道北見バス株式会社 バス0分「とん田仲通」 バス停徒歩1分
取扱・お問合せ
北見不動産売却・買取センター
0900032 北見市三住町17番地2
Tel.0157-57-5710
店舗詳細
メールでこの物件に問合せ
間取り
-
構造
木造
学校区
西小学校/光西中学校
駐車場
有り/0円/月額(駐車可能台数0台)
用途/地目
準工業地域/宅地
引渡
相談
仲介手数料
1,023,000円
現況
空き
建ぺい/容積
建ぺい率60% 容積200%
接道状況
南幅27.27mの公道に17.60m接道
北幅8.00mの公道に16.18m接道
取引態様
一般
コメント
*~*<おすすめPOINT>*~*
●国道39号線に面しています!
●接道(南側公道・北側公道)二方道路です☆
●店舗の隣にある古家は解体予定です!
*~*<周辺環境>*~*
●西小学校まで徒歩14分、光西中学校まで徒歩14分
●ローソン 北見本町五丁目店まで徒歩2分
●北見とん田郵便局まで徒歩3分
●本町第2公園まで徒歩2分
〈その他〉
●公簿売買・現状渡し
●前面道路都市ガス管あり(敷地内に引込む際、別途費用がかかります)
●店舗の隣にある、古家は解体し更地となります
備考
-
設備等
-
メールでこの物件に問合せ
「すーまるnet」は参加店を随時募集中です!
すーまるnetについて
物件の掲載について
すーまるnetへのお問合せ
借りたい
| エリアから
| 地図から
| 学校から
| 新着物件一覧
買いたい
| マンション
| 一戸建
| 土地・収益物件
| 新着物件一覧
web特集
トピックス
不動産業者様へ
参加取扱店一覧
すーまるnetについて
物件の掲載について
すーまるnetへのお問合せ
ご利用規約
© Tokachi Mainichi Newspaper Inc.
マイリスト
履歴
閲覧履歴
検索履歴