借りたい
賃貸物件を探す
買いたい
住宅や土地を探す
お知らせ
すーまるnetからのお知らせ
トピックス
取扱店からのお知らせ
不動産業者様へ
掲載やサイトについて
北見の不動産・お部屋探し決定版!
「
借りたい
」「
買いたい
」 なんでもミツカル!
北見の賃貸・不動産の売買情報「すーまるnet」
kitami.suumaru-net.com
北見の不動産・お部屋探し決定版!
「
借りたい
」「
買いたい
」 なんでもミツカル!
借りたい
賃貸物件を探す
買いたい
住宅や土地を探す
お知らせ
すーまるnetからのお知らせ
トピックス
取扱店からのお知らせ
不動産業者様へ
掲載やサイトについて
参加取扱店|一覧をみる
|借りたい|
|エリアから探す|
|地図から探す|
|学校から探す|
|新着物件一覧|
|買いたい|
|マンション|
|一戸建|
|土地・収益物件|
|新着物件一覧|
◉
マイリストをみる
◉
すーまるnetについて
◉
物件の掲載について
◉
すーまるnetへのお問合せ
◉
ご利用規約
|買いたい|
物件詳細
マイリストに追加
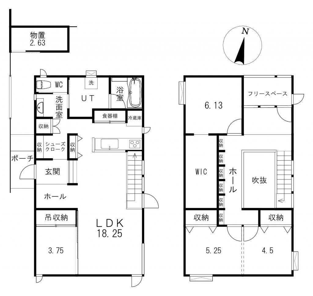
中古戸建 北進町1丁目14番27号
3,080
万
円
所在地
北見市北進町1丁目14番27号
築年
2020年7月
種別/階建
戸建て/地上2階建
面積
建物/123.48㎡ 土地/258.23㎡
交通
JR石北本線 北見駅 徒歩29分
北海道北見バス 「夕陽ヶ丘4号線」 バス停徒歩2分
取扱・お問合せ
北見不動産売却・買取センター
0900032 北見市三住町17番地2
Tel.0157-57-5710
店舗詳細
メールでこの物件に問合せ
間取り
4LDK(LDK18.2帖/洋室3.7帖/洋室6.1帖/洋室9.7帖)
構造
木造
学校区
北小学校/高栄中学校
駐車場
有り(駐車可能台数4台)
用途/地目
第二種中高層住居専用地域/宅地
引渡
相談
仲介手数料
1,082,400円
現況
入居中
建ぺい/容積
建ぺい率60% 容積200%
接道状況
北幅8.00mの公道に15.19m接道
取引態様
専任
コメント
*~*<おすすめPOINT>*~*
●令和2年築の都市ガス物件☆2階建て4LDK!
●駐車場4台可☆ご家族分の車を停めれますね(*^-^*)
●ダイニングにある6連窓から、柔らかな朝日が射し込みます♪
*~*<周辺環境>*~*
●北小学校まで徒歩9分、高栄中学校まで徒歩17分
●イオン北見店まで徒歩4分
●ツルハドラッグ 夕陽ケ丘店まで徒歩1分
●コインランドリー洗濯北進館まで徒歩2分
〈その他〉
●公簿売買・現状渡し・契約不適合免責
●前面道路都市ガス管あり
●価格変更【3300万円→3080万円】2026.3.9~
備考
-
設備等
物置
フローリング
吹き抜け
ウォークインクローゼット
シューズインクローゼット
浴室1坪以上
システムキッチン
都市ガス
モニタ付インターホン
メールでこの物件に問合せ
「すーまるnet」は参加店を随時募集中です!
すーまるnetについて
物件の掲載について
すーまるnetへのお問合せ
借りたい
| エリアから
| 地図から
| 学校から
| 新着物件一覧
買いたい
| マンション
| 一戸建
| 土地・収益物件
| 新着物件一覧
web特集
トピックス
不動産業者様へ
参加取扱店一覧
すーまるnetについて
物件の掲載について
すーまるnetへのお問合せ
ご利用規約
© Tokachi Mainichi Newspaper Inc.
マイリスト
履歴
閲覧履歴
検索履歴