借りたい
賃貸物件を探す
買いたい
住宅や土地を探す
お知らせ
すーまるnetからのお知らせ
トピックス
取扱店からのお知らせ
不動産業者様へ
掲載やサイトについて
北見の不動産・お部屋探し決定版!
「
借りたい
」「
買いたい
」 なんでもミツカル!
北見の賃貸・不動産の売買情報「すーまるnet」
kitami.suumaru-net.com
北見の不動産・お部屋探し決定版!
「
借りたい
」「
買いたい
」 なんでもミツカル!
借りたい
賃貸物件を探す
買いたい
住宅や土地を探す
お知らせ
すーまるnetからのお知らせ
トピックス
取扱店からのお知らせ
不動産業者様へ
掲載やサイトについて
参加取扱店|一覧をみる
|借りたい|
|エリアから探す|
|地図から探す|
|学校から探す|
|新着物件一覧|
|買いたい|
|マンション|
|一戸建|
|土地・収益物件|
|新着物件一覧|
◉
マイリストをみる
◉
すーまるnetについて
◉
物件の掲載について
◉
すーまるnetへのお問合せ
◉
ご利用規約
|買いたい|
物件詳細
マイリストに追加
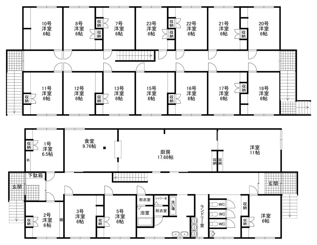
寄宿舎・住宅付 東三輪4丁目
6,500
万
円
所在地
北見市東三輪4丁目15番8、15番9外4筆
築年
1984年5月
種別/階建
マンション/地上2階建
所在階
地上2階
面積
-
交通
JR石北本線 西北見駅 徒歩27分
管理・共益費
-
修繕積立金
-
取扱・お問合せ
北見不動産売却・買取センター
0900032 北見市三住町17番地2
Tel.0157-57-5710
店舗詳細
メールでこの物件に問合せ
間取り
-
構造
木造
学校区
三輪小学校/光西中学校
駐車場
有り
引渡
相談
仲介手数料
2,211,000円
現況
賃貸中
専有面積
-
総戸数
19戸
取引態様
一般
コメント
※公簿売買・現状渡し・契約不適合免責※接道【西側(公道)幅員8m 間口38.97m】※学校区【三輪小学校まで徒歩14分・光西中学校まで徒歩14分】※前面道路都市ガス管なし ※地目(宅地:15番8、15番16/雑種地:15番9、15番10/公衆用道路:15番28、15番29)※居宅有(木造亜鉛メッキ鋼板葺2階建、床面積:178.2㎡、昭和54年7月築・昭和59年4月増築)過去4年以内のリフォーム
※下宿
・客室19部屋、厨房、従業員休憩所エアコン設置
・客室19部屋、個別電気メーター設置(電気料徴収用)
・客室、クロス・床貼替
・給湯ボイラー2台交換
・客室19部屋、入口扉交換
・床下給水管熱線工事
・屋根塗装・熱線工事
・厨房設備入替
・シャワー室交換
・浴室ユニット交換
・シャワー室・浴室コインカウンター設置(給湯・給水使用料)
・Wi-Fi工事
・トイレ位置変更(給排水工事)・増設(個室工事)・トイレ設備交換
・洗面台交換
・客室TV・冷蔵庫設置
・ブレーカー交換
・共用部廊下、クロス床貼替
・消防点検設備設置
・ランドリー室、洗濯機交換
※住宅
・玄関扉交換
・玄関、脱衣室、トイレ、居間、洋室、廊下クロス貼替(一部床貼替)
・洗面台交換
・灯油ボイラー交換
・ユニット交換
・トイレ交換
・ブレーカー交換
・建具一部交換
・サッシ交換
・灯油ストーブ交換
・換気設備交換(一部)
・照明器具交換(一部)
備考
-
設備等
-
メールでこの物件に問合せ
「すーまるnet」は参加店を随時募集中です!
すーまるnetについて
物件の掲載について
すーまるnetへのお問合せ
借りたい
| エリアから
| 地図から
| 学校から
| 新着物件一覧
買いたい
| マンション
| 一戸建
| 土地・収益物件
| 新着物件一覧
web特集
トピックス
不動産業者様へ
参加取扱店一覧
すーまるnetについて
物件の掲載について
すーまるnetへのお問合せ
ご利用規約
© Tokachi Mainichi Newspaper Inc.